
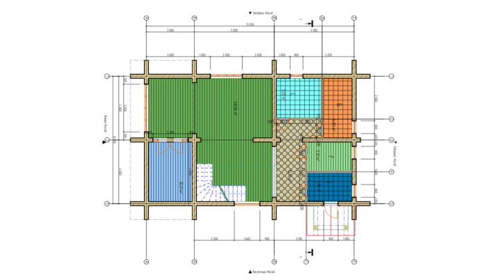
Деревянный дом по проекту «Nordlys» выполнен из лафета по норвежской технологии рубки. Материал – сибирский кедр. Общая площадь дома 185 м2.
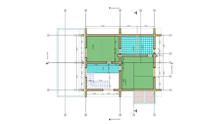
Дом двухэтажный, большую часть первого этажа занимает гостиная площадью 48 м2. На каждом этаже есть раздельный сан. узел. На первом этаже расположены три изолированные комнаты. На втором этаже кроме раздельного сан узла находятся две просторные комнаты площадью 17,81 м2 и 22,56 м2. В гостиной есть большое панорамное окно.
| Тип проекта: | Деревянный дом |
| Технология: | Норвежская технология |
| Площадь: | 185 м² |
| Срок строительства: | 4 месяца |
| Срок монтажа: | 4 дня |
| Стадия: | Отделка |
Узнать стоимость строительства
деревянного дома в июне 2025 г




































