+7 (908) 944-99-98
Узнать стоимость
Цены
Ручная рубка
Профилированный брус
Кровельные работы
Межвенцовый утеплитель
Проектирование
Проекты
Деревянные дома
Деревянные бани
Деревянные беседки
Деревянные гаражи
Деревянные объекты
Статьи
Галерея
О нас
Отзывы
Цены
Ручная рубка
Профилированный брус
Кровельные работы
Межвенцовый утеплитель
Проектирование
Проекты
Деревянные дома
Деревянные бани
Деревянные беседки
Деревянные гаражи
Деревянные объекты
Статьи
Галерея
О нас
Отзывы
«Сортланн»
Деревянный дом по норвежской технологии
Тип проекта:
Деревянный дом
Технология:
Норвежская технология
Площадь:
75 м²
Стадия:
Проект
Узнать
стоимость строительства деревянного дома
в июне 2025 г
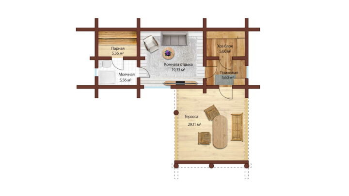
Планировка
3D-проект
3D-проект
Выбор плеера:
VK
YouTube
RuTube
Норвежская технология
Другие проекты
«Кедровый двор»
«Коноба»
«Кулацкая заимка»
«Лофт»
«Альпийский домик»
«Фишер»
«Крымский мост»
«Скандинавский утёс»
«Левангер»
«Хамар»
Цены на строительство
«Ямаска»
Деревянная беседка по технологии Post&Beam
Подробнее
«Лофт»
Деревянная баня по норвежской технологии
Подробнее
«Фемунн»
Деревянный дом по норвежской технологии
Подробнее
«Фишер»
Деревянная баня по норвежской технологии
Подробнее
«Есхейм»
Деревянная баня по норвежской технологии
Подробнее
«Левангер»
Деревянная баня по норвежской технологии
Подробнее
«Хамбер»
Деревянный гараж по канадской технологии
Подробнее
«Гарибальди»
Подробнее
«Хеймелиг»
Деревянный дом по канадской технологии
Подробнее
«Брюне»
Деревянный дом по норвежской технологии
Подробнее
Есть вопросы?
Укажите телефон и мы обязательно с Вами свяжемся
Ошибка SMTP
Сообщение успешно отправлено!
Нажимая на кнопку, я даю
согласие
на обработку персональных данных
Обратная связь
Ошибка
Сообщение успешно отправлено!
Как с Вами связаться?
Сообщение
Отправить
Нажимая на кнопку, Вы даете
согласие
на обработку персональных данных