
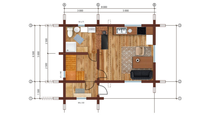
Невероятно уютный и тёплый двухэтажный деревянный дом, изготовленный по норвежской технологии из лафета. На сравнительно небольшой площади разместилось всё необходимое для максимально комфортной жизни. Высочайшее качество рубки обеспечит долгие годы прекрасного внешнего вида дома и позитивного настроения владельцев.
| Тип проекта: | Деревянный дом |
| Технология: | Норвежская технология |
| Стоимость сруба: | 4 380 000, руб. |
| Площадь: | 85 м² |
| Стадия: | Готов |
Узнать стоимость строительства
деревянного дома в июне 2025 г





































